L’Ajuntament ha de tornar a actuar amb les gandules de Sant Pol
18/08/2017
Guíxols des del Carrer (GdC) va difondre aquesta setmana unes queixes relacionades amb l’ocupació abusiva de les gandules i els para-sols a la platja de Sant Pol i ha revifat una polèmica que ja ve sent habitual cada estiu.
El grup polític recorda que la normativa limita l’espai a... Continua llegint [...]
El govern vol solucionar l’excés d’avaries en la xarxa d’aigües
17/08/2017
En els últims quatre anys (2013-2017), la nostra ciutat ha registrat 407 avaries a la xarxa d’aigua, segons va afirmar el govern al darrer ple municipal. Unes xifres que posen de manifest l’estat “deteriorat” de la xarxa d’aigua, un fet admès pel regidor d’Urbanisme, Josep Saballs, a... Continua llegint [...]
La plataforma “Salvem el Monestir” no vol el Thyssen en el recinte
11/08/2017
Segons informa El Punt-Avui, una plataforma ciutadana anomenada Salvem el Monestir reclama que el futur museu Thyssen no es faci en l'històric edifici i defensa que es recuperi la idea original de fer-lo en una instal·lació nova.
Salvem el Monestir considera que s’està davant d’una... Continua llegint [...]
Es licita el projecte d’urbanització del moll del Fortí
28/07/2017
Ports de la Generalitat licita el projecte d’urbanització del port de Sant Feliu, que donarà continuïtat al passeig marítim a través del moll del Fortí per obrir més l’espai portuari als ciutadans, ordenarà la superfície del moll i la zona d’aparcament i valoritzarà els elements... Continua llegint [...]
Nou conflicte laboral al geriàtric ganxó
18/07/2017
El sindicat UGT ha presentat una altra demanda contra l’Ajuntament i la gestora del centre geriàtric Fundació Guíxols Surís perquè han decidit abonar només una part de la paga extra del mes de juny als treballadors.
La UGT ja havia demandat l’Ajuntament i la gestora... Continua llegint [...]
La subhasta de l’Hotel Panorama torna a fracassar
13/07/2017
Un cop acabat el termini de presentació de les instàncies per poder prendre part en la subhasta pública de tres immobles procedents de la herència intestada dels germans Anlló (acabava el 30 de juny), no s'ha presentat cap oferta per l'Hotel Panorama.
Així, la venda de l'hotel estrella de... Continua llegint [...]
Prudència davant l’anunci del nou Thyssen
17/07/2017
L’anunci de cessió temporal de la col·lecció catalana de pintura de Carmen Thyssen i la construcció d’un Thyssen permanent a la ciutat, fet a bombo i platerets, no ha agafat per sorpresa a Guíxols des del Carrer-Entesa, que encara recorda quan el mes d’abril de l’any... Continua llegint [...]
Els preus de la funerària hauran de ser públics
01/07/2017
L’autoritat Catalana de la Competència ha desestimat el recurs presentat per la Funerària Juanals, de manera que els serveis de pompes fúnebres que presta hauran de ser públics.
Aquesta mesura va ser fruit d’una moció presentada per Guíxols des del carrer-Entesa el mes de febrer de... Continua llegint [...]
GdC vol que l’Hotel Regente també es destini a lloguer social
09/06/2017
La formació Guíxols des del Carrer vol que elements del patrimoni dels germans Anlló com l'Hotel Regente o l'immoble ocupat del carrer Verdaguer també es destinin a habitatge social, ja que creuen que l'oferta a la ciutat és insuficient i no pot donar sortida a prou famílies vulnerables... Continua llegint [...]
“Guíxols Flors” reobre els Jardins del Monestir al públic per primera vegada
02/05/2017
Pel proper cap de setmana ( 6 i 7 de maig) està programada l'exposició de flors "Guíxols Flors", que servirà per obrir els Jardins del Monestir al públic després de segles tancats.
Els jardins, en mans privades des de feia dos segles i antigament propietat del Monestir i que l’Ajuntament... Continua llegint [...]
Unes 4000 persones veuen els jardins del monestir i el certamen Guíxols Flors
08/05/2017
L'obertura pública dels jardins dels Monestir, adquirits per l'Ajuntament a finals de l'any passat, va atraure unes 4000 persones al llarg d'aquest cap de setmana, en què s'hi ha celebrat el certamen anual Guíxols Flors (64ena edició) i s'hi han fet petits concerts de música clàssica,... Continua llegint [...]
L’antic Hotel Mediterráneo acollirà habitatge social
13/04/2017
L'antic Hotel Mediterráneo, del llegat Anlló, situat al centre de la ciutat, al carrer Penitència, es reconvertirà en deu habitatges socials, segons ha anunciat aquest matí l'alcalde en roda de premsa. El consistori ha tancat un acord, a través de la Fundació Surís, amb el Departament de... Continua llegint [...]
Guíxols des del Carrer veu manca de seguretat al Guíxols Arena, tot i l’enjardinament
12/04/2017
Guíxols des del Carrer lamenta que el Guíxols Arena presenti, "com el primer dia", deficiències en quant a seguretat i que "encara no s'hagi fet res". En una nota al seu web, la formació adverteix que "s'ha enjardinat la zona, però no es millora en seguretat".
Ja poc després de la seva... Continua llegint [...]
Enjardinen els voltants del Guíxols Arena
11/04/2017
L'Ajuntament, a través de l'empresa adjudicatària, ha enllestit l'enjardinament dels entorns del Guíxols Arena, una actuació que estava pendent des de la tardor, quan es va estrenar la graderia i la urbanització de l'esplanada polivalent que es fa servir com a aparcament, amb dues pistes de... Continua llegint [...]
La CUP reivindica habitatge social pel llegat Anlló
09/04/2017
La CUP de Sant Feliu de Guíxols va organitzar aquest dissabte 8 d'Abril, a la Plaça Salvador Espriu, una jornada per l'habitatge social en la qual hi va participar finalment el diputat Benet Salellas juntament amb el militant local Jaume Fernàndez.
En la mateixa hi va haver declaracions... Continua llegint [...]
La CUP Guíxols vol que els diners de l’herència Anlló es destinin a habitatge social
02/04/2017
Davant les darreres informacions sobre l'herència Anlló que han sortit publicades als mitjans, en què es cita que l'Ajuntament ha acordat un full de ruta "àgil i que permet posar el punt i final a un llarg camí de tràmits i gestions per liquidar l’herència i revertir-la a la ciutat” i... Continua llegint [...]
Repàs a les fonts urbanes
08/03/2017
La brigada d'obres ha retirat aquests darrers dies diverses fonts d'aigua potable que hi ha repartides pel nucli urbà, com ara a la plaça del Nord i la cantonada de Sant Adolf i Santa Llúcia, per restaurar-les, segons hem pogut observar al carrer i ha publicat El Punt-Avui.
Es tracta d'una... Continua llegint [...]
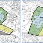
Llum verd d’Urbanisme de la Generalitat a l’ampliació dels Jardins del Monestir
02/03/2017
La Comissió territorial d’urbanisme de Girona, presidida pel director general d’Ordenació del Territori i Urbanisme, Agustí Serra, ha informat favorablement avui la modificació del Pla d’ordenació urbanística municipal (POUM) de Sant Feliu de Guíxols, que amplia l’espai públic al... Continua llegint [...]
L’Ajuntament amplia el domini públic als jardins del Monestir
01/03/2017
Segons informa el diari El Punt-Avui, l'Ajuntament ampliarà el domini públic a la finca dels jardins de Can Blasco, després d'haver assolit un acord amb les famílies De la Peña i Riera Prim per afegir 650 metres quadrats que encara eren privats al bell mig de la zona verda. A canvi, el... Continua llegint [...]
El Pla Europeu FEDER invertirà en millores al Museu de la ciutat
21/02/2017
La consellera de Governació, Administracions Públiques i Habitatge, Meritxell Borràs, va participar ahir en l’acte de presentació de quatre projectes FEDER impulsats per la Diputació de Girona. El president de la Diputació Pere Vila va presentar l'acte, en què es van explicar els... Continua llegint [...]


